Rent: £900 pcm
Bond: £1038.46
Holding Deposit: £207.68
Nestled in the highly desirable village of Sutton Cum Lound, Retford, this charming two-bedroom character property, having recently undergone a comprehensive refurbishment is ready for immediate occupation.
Upon entering, you are greeted by a welcoming front porch, that leads into the open plan living/dining space. There is also a side porch, this versatile space is ideal for use as a utility area, providing practical storage and a convenient spot for coats and shoes, keeping the main living areas clutter-free.
The heart of this home is its good-sized, open-plan living and dining area. This thoughtfully designed space offers ample room for both relaxation and entertaining, creating a bright and inviting atmosphere. The seamless flow between the living and dining zones makes it perfect for modern lifestyles, allowing for flexible furniture arrangements and social gatherings.
The newly fitted kitchen is a standout feature, boasting contemporary units, integrated appliances, and stylish finishes. It provides a functional and aesthetically pleasing environment, ensuring every meal preparation is a pleasure. The quality of the refurbishment is evident throughout, promising a comfortable and low-maintenance lifestyle.
Upstairs, the property offers two well-proportioned bedrooms. These rooms are bright and airy, offering sufficient space for bedroom furniture and personal touches. The family bathroom, also newly refurbished, features modern sanitary ware and elegant tiling, creating a serene space for daily routines.
Externally, the property benefits from a low-maintenance outside area to the front.
Located in Sutton, residents will appreciate the village's popular appeal, offering a sense of community while being within easy reach of Retford's amenities. Retford provides a wider range of shops, supermarkets, schools, and leisure facilities, along with excellent transport links, including a mainline train station with direct services to London King's Cross.
Viewing is highly recommended to fully appreciate the quality and charm this delightful home has to offer.
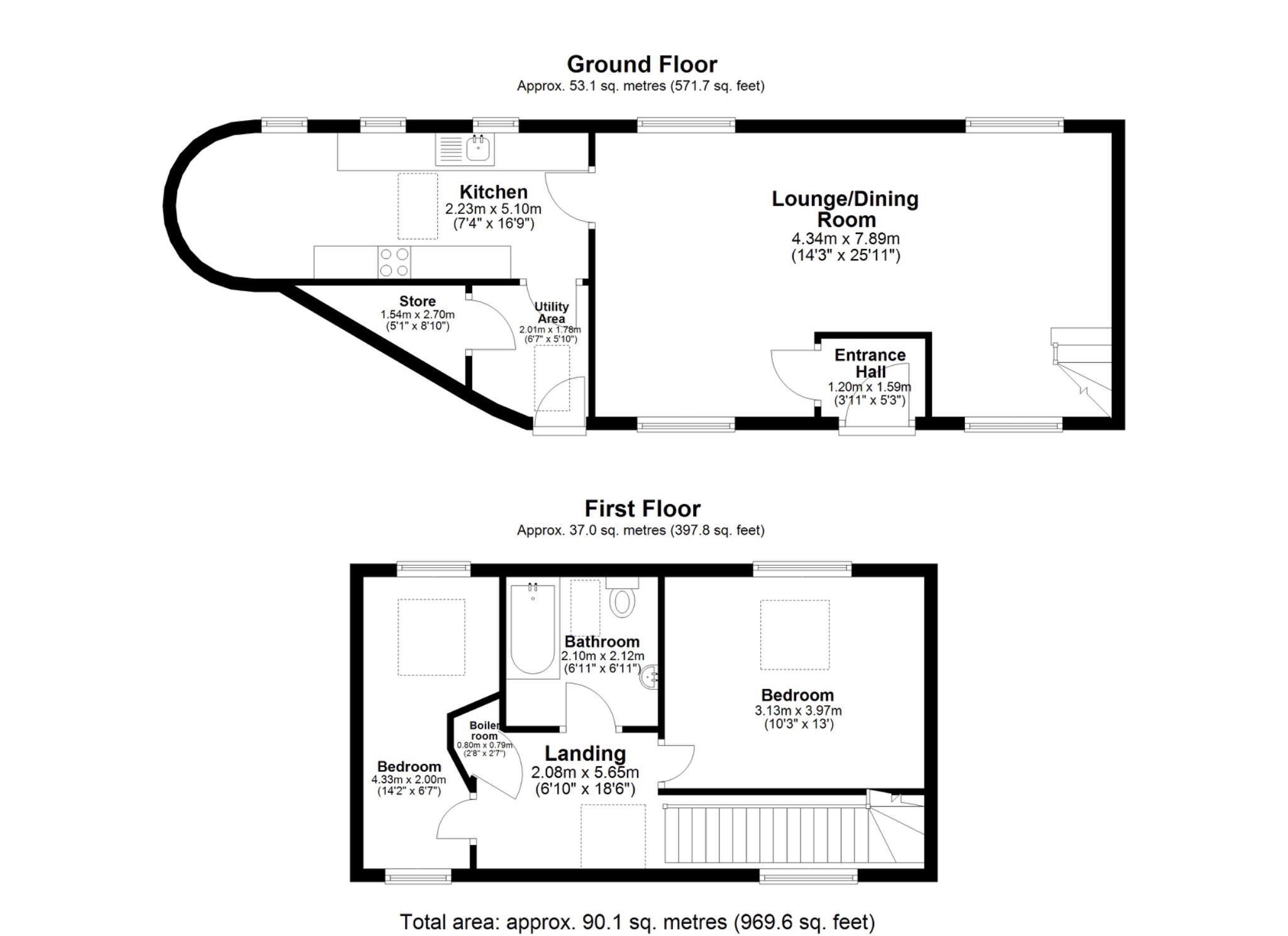
Accommodation
Entrance Hall
1.20m x 1.59m
Lounge/Diner
4.34m x 7.89m
Kitchen
2.23m x 5.10m
Utility Area
2.01m x 1.78m
Store
1.54m x 2.70m
First Floor Landing
2.06m x 5.65m
Bedroom One
3.13m x 3.97m
Bedroom Two
4.33m x 2m
Bathroom
2.10m x 2.12m
General Remarks and Stipulations:
Council Tax: We are advised by Bassetlaw District Council that this property is in Band B
Services: Mains water, electricity and drainage are connected.
Floorplans: The floorplans within these particulars are for identification purposes only, they are representational and are not to scale. Accuracy and proportions should be checked by prospective tenants at the property.
Referencing: Prospective tenants wishing to apply, will be required to pass referencing checks. Tenants will be required to provide proof of identity once an offer has been accepted and provide proof of their right to rent. Referencing includes a credit check, proof of income check and a previous landlord / letting agent check.
Reservation fee: Once your application is accepted, a reservation fee equivalent to 1 weeks rent (£207.69) will be payable. Providing your referencing is acceptable and your tenancy proceeds the reservation fee will count towards your first months rent. If your referencing is unsuccessful, or you fail to take up residency in the property your reservation fee will be non-refundable.
General: Whilst every care has been taken with the preparation of these particulars, they are only a general guide to the property. These Particulars do not constitute a contract or part of a contract.